Objektdaten
RefNr.
M3600_24
Objektart
Erdgeschoss
Immobilientyp
Vermietung - Wohnen
Kategorie
Wohnungen
Ort
94447 Plattling
Land
Deutschland
Baujahr
2024
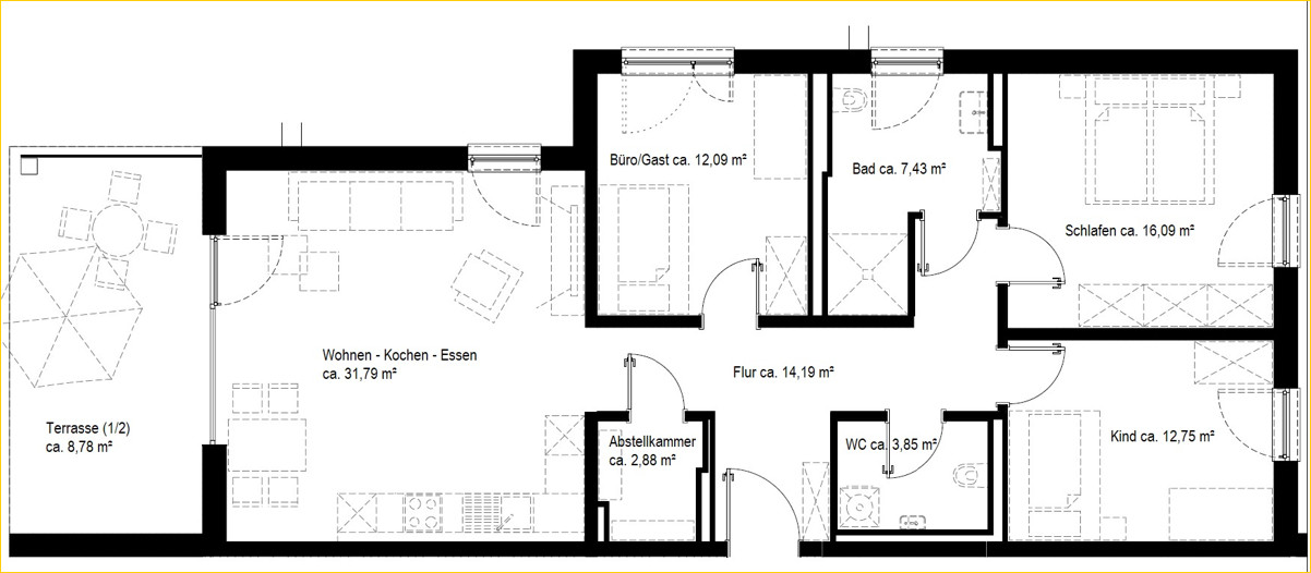
Wohnfläche
111,01 m²
Zimmer
4
Kaltmiete
1.450,00 €
Nebenkosten
310,00 €
Gesamtmiete
1.760,00 €
Bezugsfrei ab
01.11.2025
Energiedaten
Energieausweistyp
Bedarfsausweis
Endenergiebedarf
50 kWh/(m²*a)
Heizungsart
Fußbodenheizung
Baujahr der Anlage
2024
Primärer/Wesentlicher Energieträger
Fernwärme
Energieausweis-Erstellungsdatum
ab 01. Mai 2014
Energieeffizenzklasse
A
Energieverbrauch für Warmwasser enthalten
Nein
Energieausweis-Gültigkeitsdatum
2031-05-03
Beschreibung

Lage

Die angebotene Wohnung befindet sich in der charmanten niederbayerischen Stadt Plattling, einer lebendigen Gemeinde mit einer reichen Geschichte und einem modernen Lebensgefühl. Plattling liegt malerisch an der Isar und bietet seinen Bewohnern eine perfekte Kombination aus naturnahem Wohnen und urbaner Infrastruktur. Die Mühlbachpromenade ist bekannt für ihre ruhige und doch zentrale Lage, die einen unvergleichlichen Zugang zu den schönsten Naherholungsgebieten der Umgebung bietet. Die Nähe zum Stadtzentrum ermöglicht es den Bewohnern, fußläufig alle Annehmlichkeiten wie Einkaufsmöglichkeiten, Restaurants, Schulen und medizinische Einrichtungen zu erreichen. Auch der öffentliche Nahverkehr ist hervorragend ausgebaut und garantiert eine bequeme Anbindung zu den umliegenden Städten und Gemeinden. Plattling selbst ist ein wichtiger Verkehrsknotenpunkt in der Region und bietet somit auch ideale Bedingungen für Berufspendler. Diese Lage vereint Komfort, Naturverbundenheit und städtisches Leben auf harmonische Weise und macht die Wohnung zu einem perfekten Zuhause für zahlreiche Lebenslagen.

Ausstattung

Allgemeine Ausstattung der 3-4-Zimmer-Wohnungen:

Die Grundrisse aller verfügbaren Wohnungen sind im Exposé enthalten.

Die finalen Mietpreise (samt TG, Küche, Nebenkosten usw.) der einzelnen Wohnungen, entnehmen Sie bitte der separaten Mietpreisliste in der E-Mail-Anlage.

- KfW 55 Bauweise
- hochwertig und mit Liebe zum Detail angelegte Außenanlagen in der gesamten Neubausiedlung
- hochwertige Einbauküche (mit vermietet) inkl. Elektrogeräte (Induktionskochfeld)
- moderne Bäder mit großen bodengleichen Duschen
- Bäder mit stilvollen, großen Fliesen in einem eleganten Sandton
- teilweise mit sep. Gäste-WC
- die Waschmaschinenanschlüsse sind unterschiedlich, entweder im Bad, im WC oder im
Abstellraum
- schöne Echtholzparkettböden in den Wohn- und Schlafräumen
- weiße Innentüren
- elektrische Rollläden
- elektrische Raffstores in den Penthouse-Wohnungen
- weiße Kunststofffenster mit Isolierverglasung
- Fußbodenheizung mit Einzelraumthermostaten
- Balkon oder Terrasse/Garten
- TG-Stellplatz inkl. Wallbox
- Kellerabteil
- Lüftungsanlage
- moderne Absturzsicherungen aus Glas
- Gegensprechanlage mit Video

- Aufzug ab KG vorhanden

Miete für diese EG-Wohnung:

Miete: 1.450,- zzgl. NK 310,- zzgl. TG 70,- zzgl. EBK 60,- = 1.890,- EUR

Erdgeschoss:
- Wohnung Nr. B23: vermietet
- Wohnung Nr. B24: 4-Zimmer-Wohnung mit ca. 111 m² - barrierefrei -

- Wohnung Nr. B25: vermietet

1. Obergeschoss:
- Wohnung Nr. B26: vermietet
- Wohnung Nr. B27: vermietet

- Wohnung Nr. B28: vermietet

2. Obergeschoss:
- Wohnung Nr. B29: vermietet
- Wohnung Nr. B30: 4-Zimmer-Wohnung mit ca. 110 m² - barrierefrei -

- Wohnung Nr. B31: 3-Zimmer-Wohnung mit ca. 88 m²

Penthouse:
- Wohnung Nr. B32: 4-Zimmer-Wohnung mit ca. 112 m²

- Wohnung Nr. B33: vermietet

Sonstiges

Gerne übersenden wir Ihnen ein ausführliches Exposé mit zahlreichen Fotos und Außenansichten - bitte teilen Sie uns hierzu noch Ihren Namen, Ihre Anschrift und Ihre Festnetz-/Mobilnummer mit - vielen Dank!

Sperr & Zellner Immobilien GmbH

Büro Dorfen: Büro Neufinsing:
Haager Str. 16 Münchner Str. 4

84405 Dorfen 85464 Neufinsing

Tel. 0 80 81 / 9 55 88 0 Tel. 0 81 21 / 99 555 0

Fax 0 80 81 / 9 55 88 44 Fax 0 81 21 / 99 555 25

E-Mail: info@sperr-zellner.de

www.sperr-zellner.de

Ansprechpartner
Sandra Fisch
Ansprechpartner
Sandra Fisch
Straße
Münchner Str. 4
Ort
85464 Neufinsing
Energiedaten
Rückrufformular